Продам дом, коттедж 119 м.кв.

на карте
Просмотров 2
7 500 000 руб.
на 46% дешевле похожих объектов ?
Видное , город Видное, село Остров, Преображенская улица
Свинцова Ирина Михайловна
Показать телефон
Данные актуальны на 20.03.2026
Пожаловаться на объявление
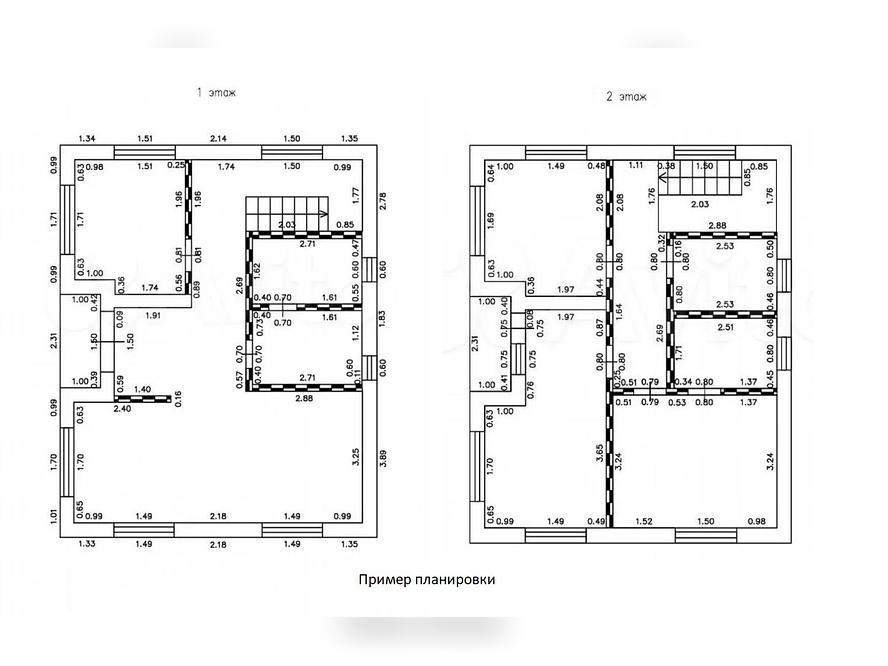
Предлагается к продаже жилой дом площадью 119 кв. м, расположенный в живописном месте Московской области, в коттеджном посёлке «Графский пруд». Этот посёлок представляет собой уникальный квартал, созданный в духе русской дворянской усадьбы. Здесь гармонично сочетаются современные удобства и исторические мотивы, вдохновленные историей вотчин графа Орлова. Для жителей комплекса предусмотрены зоны активного отдыха и релаксации: теннисный корт, футбольное поле, площадка для баскетбола, а также просторный банный комплекс. Прекрасные виды рек, озёр и прудов создают атмосферу спокойствия и гармонии с природой. Окружающая природа порадует вас лесными прогулками среди берёз и сосен. Посёлок расположен вблизи всех необходимых объектов инфраструктуры: супермаркетов, ресторанов, гостиниц, фитнес-клубов, магазинов, аптек и медицинских учреждений. Отличительной особенностью является пешая доступность к Москве-реке и красивым местам отдыха, таким как парк-отель «Остров», рыболовная усадьба и ресторанный комплекс «Преображенский храм». Транспортная доступность отличная: ближайшие трассы - Каширское и Бесединское шоссе, что позволяет всего за 15 минут выехать к МКАД, а автобусный маршрут из поселка Остров доставит вас прямо до станции метро «Домодедовская». Строительство дома находится на финальном этапе, по большому счету осталась только внутренняя отделка. Стены изготовлены из газосиликатных блоков премиум класса YTONG 400 см, а это гарантия высокой прочности, отличной тепло- и звукоизоляции. Перекрытия и фундамент - монолитная плита. Современная мембранная кровля с эффективным утеплителем защита от атмосферных воздействий и сохранение тепла. Коммуникации: скважина, септик автономные; подключено электричество; выполнена дренажная система, для защиты фундамента от грунтовых и талых вод. Для организации осмотра и получения дополнительной информации, свяжитесь со мной через чат на Портале DA или по телефону, всегда на связи в будние дни с 9-00 до 18-00 МСК+4. Предлагаем воспользоваться услугами профессионального агента для приобретения имущества с торгов. Ждем ваши предложения по цене!

Параметры здания

Тип дома Кирпичный Год постройки - Количество этажей 2 Туалет Есть Отопление - Возможность прописки -
Электричество - Газ - Вода - Канализация - Гараж -

Параметры объекта

Количество комнат 3 Покрытие пола - Телефон - Интернет -
Мебель - Бытовая техника - Кондиционер -

Параметры продажи

Тип продажи - Торг -
Ипотека -

Параметры участка

Площадь участка 400 м.кв.
Динамика изменения цен на рынке недвижимости ?

За последние полгода средняя сумма за кв.м. уменьшилась на 1534 руб. Колебание цен происходило от 114823 руб. до 116357 руб. На текущий момент наблюдается тенденция к уменьшению цены.
Вход в личный кабинет